Į namelio kainą įskaičiuota: poliniai pamatai, konstrukcija, apšiltinimo medžiagos, lauko ir vidaus apdaila, stogo danga (plieninė skarda), elektros instaliacija, jungikliai, šviestuvai, durys, langai, kondicionierius, vandens šildytuvas. Namelį pastatome nuo pamatų iki rakto atidavimo klientui.
LAPĖ 48
Apie namelį
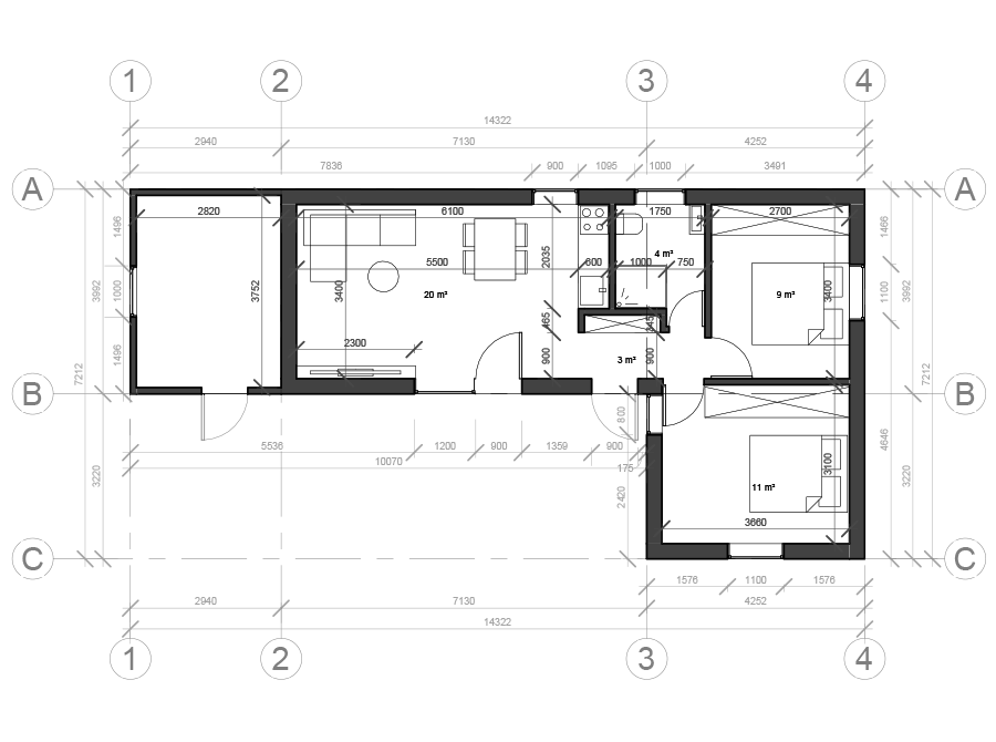
Naudingas plotas — 48 m2
51205 eur (plius PVM)
Į kainą įskaičiuota 100% baigtumas, įskaitant pilną vidaus ir lauko apdailą, kondicionierių, vandens šildytuvą, medžiagas ir darbus.
Medžiagos ir specifikacija
Vasarnamis statomas iš sertifikuotų medžiagų.
Poliai šiam siūlomam nameliui yra metaliniai įsukami arba betoniniai. Jie pasižymi tvirtumu, greitu sumontavimu ir mobilumu, prireikus juos galima išsukti ir įsukti į kitą vietą. Polių plotis ir ilgis yra parenkamas pagal gruntą. Šie poliai yra pritaikyti mažų namelių statyboms.
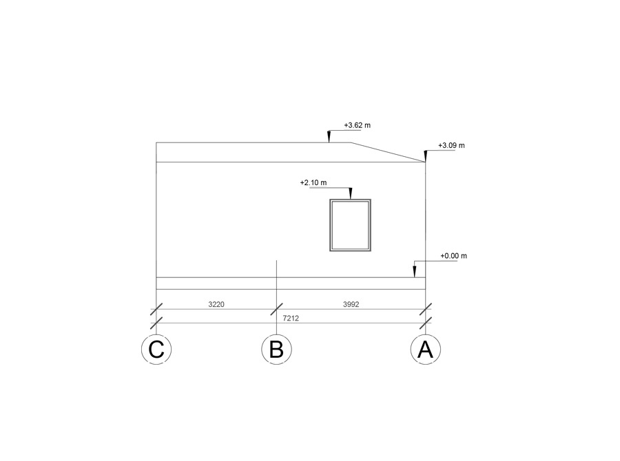
Stogas – plieninė skarda.
Šiltinimo medžiagos akmens vata 0.035W/mk šiluminės varžos. Šiltinant ir sandarinant nuo vėjo bei drėgmės yra taikoma aukštų standartų priežiūra darbams ir jų atlikimo kokybei , nes nuo to priklauso, koks šiltas bus jūsų namelis. Sienos yra šiltinamos 20cm, o stogas 20cm akmens vata.
Namelis statomas iš sertifikuotos medienos: konstrukcinė c24, apdailos A,B rūšis. Vidaus apdailai (sienos, lubos) renkamės medžio dailylentes, galimos variacijos eglinės arba pušinės dailylentės (nedažytos). Grindys pušies masyvas.








